ИНКУБАТОРНО-ПТИЦЕВОДЧЕСКАЯ СТАНЦИЯ
(ИПС)
,
предприятие,
занимающееся инкубацией яиц и выводом молодняка с.-х. птицы для снабжения колхозов,
совхозов и населения. Подразделения ИПС; цехи родительского стада,
в к-рых получают инкубац. яйца; инкубаторий
для получения молодняка; цехи доращивания молодняка; гараж со спец.
автомобилями для перевозки инкубац. яиц и суточных цыплят; вспомогат.
цехи. Гос. ИПС приобретают для инкубации
яйца на договорных началах у госплемптицезаводов,
племптицесовхозов или плем. ферм колхозов. Межколх. ИПС работают на основе договоров,
заключённых [заключенных] х-вами-совладельцами.
|
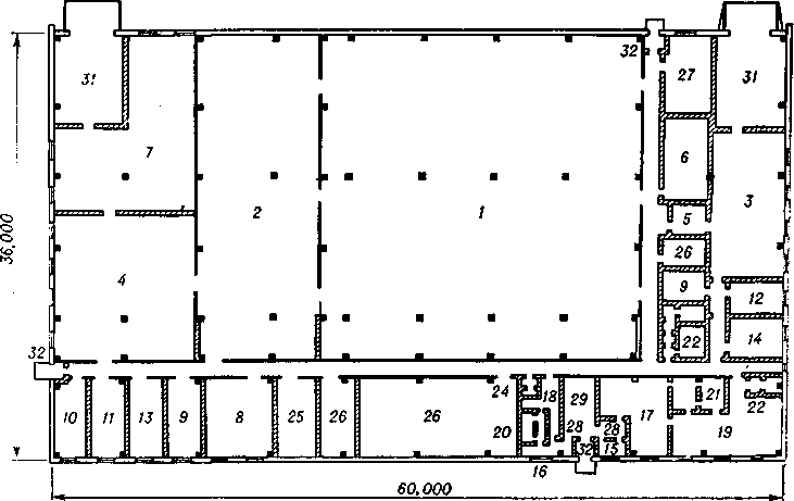
 | Инкубаторий на 24 инкубатора “Универсал-55”: 1 — инкубационный зал; 2 — выводной зал; 3 — помещение для сортировки яиц; 4 — помещение для сортировки молодняка; 5 — помещение для дезинфекции яиц; 6 — помещение для хранения инкубационных яиц; 7 — экспедиция; 8 — моечная; 9 — инвентарная; 10 — помещение для отходов; 11 — кладовая тары; 12 — лаборатория; 13 — комната механика; 14 — 24 — служебные помещения и комнаты личной гигиены; 25 — щитовая; 26 — венткамера; 27 — компрессорная; 28 — шлюз; 29 — вестибюль; 30 — коридор; 31 — тамбур для автомашин; 32 — тамбур. |
Нек-рые ИПС,
чаще межколхозные,
для получения инкубац. яиц имеют собственные плем. стада птицы.
Молодняк птицы ИПС реализует в суточном возрасте или после доращивания в возрасте 30,
60 или 90 сут. Закладка яиц в инкубаторы
,
вывод молодняка и реализация его в х-ва производятся по графику,
составленному в соответствии с деятельностью птицеферм,
расположенных в зоне ИПС. |